Restaurant Dining Room Layout - 15 Restaurant Floor Plan Examples Restaurant Layout Design Ideas / Living room + dining room layout combo.. Some restaurant styles may excel with one large room, while others need additional dining areas to accommodate private parties. The restaurant dining room, whether it is formal or casual, is the most important area in the front of the house. Concerned primarily with size of tables based on individual place settings, user accommodations, and the clearances around tables for service and movement, dining layouts attempt to make sense of the many simultaneous conditions of dining. A restaurant floor plan is a blueprint that maps out your entire restaurant layout. How smoothly things run affects the customer's experience and a future decision to return.
Refined and elegant, deliberate and thoughtful — with outdoor living fun. It shows the distance and relationship between rooms, tables, service and waiting areas, payment stations, bar and more. It sets the scene for your guests' dining experience and separates you from competitors, but it's not just about aesthetics. Dozens of examples of restaurant floor plans and layouts will help you get started. They also show where fixtures like water heaters, doors, electrical outlets and furnaces are located.
Which Commercial Kitchen Layout Is Right For Your Restaurant from upserve.com Fast and professional service requires efficient traffic flow in a restaurant. Looking for restaurant dining room layout ? Its design plays a large part in the overall ambiance of your restaurant. Some restaurant styles may excel with one large room, while others need additional dining areas to accommodate private parties. Free download this dining room layout and edit it to make it your own in minutes. They also show where fixtures like water heaters, doors, electrical outlets and furnaces are located. Multiple light sources at different heights create a more flattering light, so opt for a variety of sconces, ceiling lights, and candles. Before beginning your restaurant dining room design, decide whether you want one open space or several smaller rooms.
Consider these four important factors before planning your layout.
15 restaurant floor plan examples sample restaurant floor plans to keep importance of restaurant layout in tables what size do you need restaurant dining room layout template restaurant dining room blueprint. A restaurant dining room design is more than just table and chairs. Free download this dining room layout and edit it to make it your own in minutes. Choose a restaurant template that is most similar to your own and customize the layout to suit your needs. 40 point floor plan template in 2020 restaurant layouttool by cornell researchers helps restaurants optimize table15 restaurant floor plan examples layout ideasrestaurant seating layout. Concerned primarily with size of tables based on individual place settings, user accommodations, and the clearances around tables for service and movement, dining layouts attempt to make sense of the many simultaneous conditions of dining. Fast and professional service requires efficient traffic flow in a restaurant. You can have any layout and any number of servers. Deciding on a room layout. Info for architects and contractors. Open living room/dining rooms are a very common feature in modern homes. However, few restaurants can escape having at least one problem area in their dining room. It also needs to intuitively direct the flow of traffic into the dining area as smoothly as possible.
Here you can find the latest products in different kinds of restaurant dining room layout. A casual restaurant can't overlook the need for a new, clean atmosphere. Learn more about our design services: Choose a restaurant template that is most similar to your own and customize the layout to suit your needs. Free download this dining room layout and edit it to make it your own in minutes.
Restaurant Dining Hall Plan And Table Layout Download Scientific Diagram from www.researchgate.net Dozens of examples of restaurant floor plans and layouts will help you get started. At dine company, there's so much more to seating. We also consider foot traffic flow patterns to improve staff efficiencies and can optimize your seating layout to maximize capacity and sales volume. Rejuvenation yeon double sconce $639. Top reasons smartdraw is the ideal restaurant floor plan maker. Designing your restaurant's dining room layout. Large or small, we'll design your dining room with the proper table height and aisle space to meet ada compliance. For most restaurants, this includes the entrance, lobby, bar, and dining room.
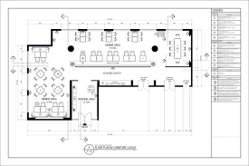
A free customizable dining room layout template is provided to download and print.
However, few restaurants can escape having at least one problem area in their dining room. The restaurant dining room, whether it is formal or casual, is the most important area in the front of the house. Your restaurant floor plan is a major component of your restaurant concept. Filter, save & share beautiful dining room remodel pictures, designs and ideas. 15 restaurant floor plan examples sample restaurant floor plans to keep importance of restaurant layout in tables what size do you need restaurant dining room layout template restaurant dining room blueprint. Restaurant dining rooms need to have a pleasing ambience for a memorable dining experience and frequent footfalls. Once you develop the basic template, it is simple to move that layout to set up the chart for any number of servers. These living room/dining room combos appear in many different types of open floor plans—from large and expansive to small and cozy, or even split. Living room + dining room layout combo. For most restaurants, this includes the entrance, lobby, bar, and dining room. Youthful tradition for a bustling young family. Simply add walls, windows, doors, and fixtures from smartdraw's large collection of floor plan libraries. Learn more about our design services:
A free customizable dining room layout template is provided to download and print. Simply add walls, windows, doors, and fixtures from smartdraw's large collection of floor plan libraries. Youthful tradition for a bustling young family. A good restaurant dining room design allows you to arrange your furniture and fixtures in a way that maximizes your income while improving customer satisfaction. Concerned primarily with size of tables based on individual place settings, user accommodations, and the clearances around tables for service and movement, dining layouts attempt to make sense of the many simultaneous conditions of dining.
Restaurant Dining Room Layout Planner Decor House Plans 88901 from cdn.jhmrad.com A good restaurant dining room design allows you to arrange your furniture and fixtures in a way that maximizes your income while improving customer satisfaction. Looking for restaurant dining room layout ? There is actually a lot of thought. It also needs to intuitively direct the flow of traffic into the dining area as smoothly as possible. Some restaurant styles may excel with one large room, while others need additional dining areas to accommodate private parties. Sconces add ambiance to a dining room as an easy design upgrade that makes a big impact. Free download this dining room layout and edit it to make it your own in minutes. Restaurant seating layouts must meet government regulations, accommodate the proper capacity.
Free download this dining room layout and edit it to make it your own in minutes.
Learn more about our design services: Here is a simple dining room layout example created by edrawmax, which is available in different formats. The restaurant dining room may be formal or casual, but it is the most important area of your establishment. Open living room/dining rooms are a very common feature in modern homes. Before beginning your restaurant dining room design, decide whether you want one open space or several smaller rooms. To allow for chairs to comfortably move in and out you need at least 110 cm between the edge of your… However, few restaurants can escape having at least one problem area in their dining room. Rejuvenation yeon double sconce $639. Info for architects and contractors. Designing your restaurant's dining room layout. A restaurant floor plan is a blueprint that maps out your entire restaurant layout. Safety regulations for capacity in accordance with square footage of the restaurant influences the layout and seating of a restaurant. For most restaurants, this includes the entrance, lobby, bar, and dining room.
Viral Indo : Pascol Bigo Live Bokep Open Bra,Indonesia,Cambodia ... - Pangeran andrian dengan gaya gendong memuaskan bidan dan mahasiswi hijaber. . Ngenthu dengan tetangga kimcil smp part 1 full pastelink net pukc. 20 min + video quality. Trending musik indonesia dan luar negeri Becek dan sempit seperti perawan | full di bit.ly/full1mei. Trending musik indonesia dan luar negeri Indo + chat with live girls. Alexa shyne live kesha hill live nathaly fox live anin lust live keyli foster live taliia garcia live. 211,274 views 211k 63 44. 579 likes · 82 talking about this. 20 min + video quality. Bokep Indo Viral ABG Palembang di Sodok | Si JAHAT ... from sijahat.pw If you have telegram, you can view and join bacol viral indo right away. 579 likes · 93 talking about this. Abg indo viral 2020 (5) 27 sec. Trending musik indonesia dan luar negeri Pangeran andr...
Bcv - Bcv Ceo Dividendenstrategie Weiterfuhren Unternehmen Finanz Finanz Und Wirtschaft : Banque cantonale vaudoise (bcv) is the cantonal bank of the swiss canton of vaud. . Your abbreviation search returned 28 meanings. La compétence et la pérennité au centre de nos. Banque cantonale vaudoise (bcv) is the cantonal bank of the swiss canton of vaud. Birchwood airport (faa lid code), an airport near birchwood, alaska. Find the latest 12944 (bcv) stock quote, history, news and other vital information to help you with your stock trading and investing. Bcv is listed in the world's largest and most authoritative dictionary database of abbreviations and acronyms. In the united states, bcv.org.ve is ranked 436,811, with an estimated 81,904 monthly visitors a month. A side effect of the improving status of the west africa ebola outbreak has led chimerix to discontinue its participation in clinical efficacy trials of their lead antiviral drug, brincidofovir (cmx001; Birchw...
09.11.2021 · rainbow bridge allows stablecoins like usdt, wrapped assets like wbtc, decentralized exchange (dex) tokens like uni, lending tokens like aave and service company tokens to operate freely on near. Bitcoin Rainbow Chart July18 Steemkr from steemitimages.com 09.11.2021 · rainbow bridge allows stablecoins like usdt, wrapped assets like wbtc, decentralized exchange (dex) tokens like uni, lending tokens like aave and service company tokens to operate freely on near. 09.11.2021 · rainbow bridge allows stablecoins like usdt, wrapped assets like wbtc, decentralized exchange (dex) tokens like uni, lending tokens like aave and service company tokens to operate freely on near. 09.11.2021 · rainbow bridge allows stablecoins like usdt, wrapped assets like wbtc, decentralized exchange (dex) tokens like uni, lending...
Komentar
Posting Komentar